Music Wallpapers

Download 20 + 200an

Mitsubishi Servo Drive Mr J3 200an Fully Automation

Mitsubishi Servo Drive Mr J3 200an Fully Automation
www.fullyautomation.com

Bl 100an 200an Crash Rails

Bl 100an 200an Crash Rails
www.c-sgroup.com

Mr J3 200an By Mitsubishi Buy Or Repair At Radwell Radwell Com

Mr J3 200an By Mitsubishi Buy Or Repair At Radwell Radwell Com
www.radwell.com

Adp Sep 200an Standard Combustion Commercial Unit Heater Aluminized Steel Heat Exchanger Ng 200 000 Btu

Adp Sep 200an Standard Combustion Commercial Unit Heater Aluminized Steel Heat Exchanger Ng 200 000 Btu
www.ecomfort.com

Naval Analyses On Twitter Two Generations Of Meko A 200 Frigates At The Same Port Valour Meko A 200san Class El Radii Meko A 200an Class Via Forums Airbase Ru Https T Co H2oeltlohx

Naval Analyses On Twitter Two Generations Of Meko A 200 Frigates At The Same Port Valour Meko A 200san Class El Radii Meko A 200an Class Via Forums Airbase Ru Https T Co H2oeltlohx
twitter.com

Mr J3 200an Mitsubishi Servo Drive Controller Mro Stop Technology

Mr J3 200an Mitsubishi Servo Drive Controller Mro Stop Technology
www.mrostop.com

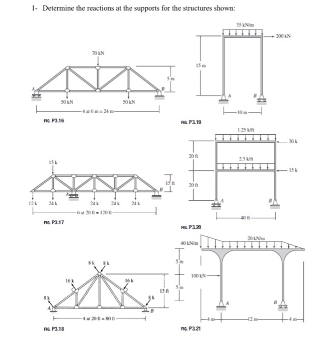
Solved 1 Determine The Reactions At The Supports For The Chegg Com

Solved 1 Determine The Reactions At The Supports For The Chegg Com
www.chegg.com

Digital Torque Adapter Drive Digital Torque Wrench Value Wtc4 200an Open Ring Ratchet Head Amazon In Car Motorbike

Digital Torque Adapter Drive Digital Torque Wrench Value Wtc4 200an Open Ring Ratchet Head Amazon In Car Motorbike
www.amazon.in

Amazon Com Baosity Rm4 200an 1 2 Inch Digital Torque Adapter Setting Range 20 200 Nm 14 7 147 5 Ft Lbs Automotive

Amazon Com Baosity Rm4 200an 1 2 Inch Digital Torque Adapter Setting Range 20 200 Nm 14 7 147 5 Ft Lbs Automotive
www.amazon.com

Customized Gtfb 200an Dn 7jaw Terminal Square Meter Base Sockets For Usa Buy 200a Merter Sockets 7jaw Merter Base Meter Base Sockets For Usa Product On Alibaba Com

Customized Gtfb 200an Dn 7jaw Terminal Square Meter Base Sockets For Usa Buy 200a Merter Sockets 7jaw Merter Base Meter Base Sockets For Usa Product On Alibaba Com
www.alibaba.com

Peppink 200an Proefmalen Youtube

Peppink 200an Proefmalen Youtube
www.youtube.com

12143 Mitsubishi Melservo Ac Servo Amplifier 2kw Mr J3 200an Ebay

12143 Mitsubishi Melservo Ac Servo Amplifier 2kw Mr J3 200an Ebay
www.ebay.com

Antari Sl 200an Snow Fluid 200 Liter Drum Sweetwater

Antari Sl 200an Snow Fluid 200 Liter Drum Sweetwater
www.sweetwater.com

Perforated Conveyor Belt Hs 200an Hongsbelt International Hk Limited Pom Pp Pe

Perforated Conveyor Belt Hs 200an Hongsbelt International Hk Limited Pom Pp Pe
www.directindustry.com

Rm4 200an Torque Wrench Adapter 10 200nm 1 2inch Spanner Tools Universal Torque Wrench Led Backlight Peak High Precision Digital Force Measuring Instruments Aliexpress

Rm4 200an Torque Wrench Adapter 10 200nm 1 2inch Spanner Tools Universal Torque Wrench Led Backlight Peak High Precision Digital Force Measuring Instruments Aliexpress
www.aliexpress.com

Mitsubishi Servo Mr J3 200an Suppliers Buy Best Price Mitsubishi Servo Mr J3 200an Pricelist Quotation Heng Ray

Mitsubishi Servo Mr J3 200an Suppliers Buy Best Price Mitsubishi Servo Mr J3 200an Pricelist Quotation Heng Ray
www.hengraytech.com

Frigate Of The Type Meko A 200an The F 910 El Radii In The Kiel Canal

Frigate Of The Type Meko A 200an The F 910 El Radii In The Kiel Canal
www.alamy.com

598 96 Mitsubishi Mr J3 200an Servo Driver One Year Warranty Welcome To Inquire From Best Taobao Agent Taobao International International Ecommerce Newbecca Com

598 96 Mitsubishi Mr J3 200an Servo Driver One Year Warranty Welcome To Inquire From Best Taobao Agent Taobao International International Ecommerce Newbecca Com
www.newbecca.com

Tig 160an 180an 200an Wenling Riling Electric Apparatus Co Ltd

Tig 160an 180an 200an Wenling Riling Electric Apparatus Co Ltd
www.rilingchina.com

Easycnc Online Shopping Mr J3 200an Mitsubishi Ac Servo Used

Easycnc Online Shopping Mr J3 200an Mitsubishi Ac Servo Used
www.easycnc.org

New Original Mr J3 200an 3ph Ac220v 2kw Ac Servo Drive Drive Aliexpress

New Original Mr J3 200an 3ph Ac220v 2kw Ac Servo Drive Drive Aliexpress
www.aliexpress.com

Gtfp 200an 8j Pointer

Gtfp 200an 8j Pointer
pointerent.com

Mitsubishi Servo Amplifier Mr J3 200an

Mitsubishi Servo Amplifier Mr J3 200an
vitaltech.com.my

223 08 Mr J3 200an Original Mitsubishi Servo Driver With A Brand New Warranty Of 1 Year From Best Taobao Agent Taobao International International Ecommerce Newbecca Com

223 08 Mr J3 200an Original Mitsubishi Servo Driver With A Brand New Warranty Of 1 Year From Best Taobao Agent Taobao International International Ecommerce Newbecca Com
www.newbecca.com

Related Post : Ciptaan Obbie Messakh


Fast Download